50 South End Plaza 50New Milford, CT 06776
Due to the health concerns created by Coronavirus we are offering personal 1-1 online video walkthough tours where possible.




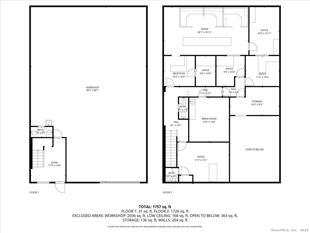
Exceptional opportunity to own a versatile industrial condo located in the desirable South End Plaza. Unit 50 offers a well designed layout across two floors, ideal for a variety of business operations. This end unit features multiple private offices, three bathrooms, and a convenient kitchenette, making it perfectly equipped for both administrative and warehouse/production needs. Recent upgrades include a new high-efficiency dual-fuel heat pump paired with a propane furnace, ensuring cost effective heating and comfort year-round. The property offers excellent functionality with ample parking, designated garbage area, and extra exterior storage capable of accommodating a 53' trailer-a rare advantage in this location. A powered storage container is also included onsite for just $75 per month, providing additional flexible space for equipment, tools, or materials. Whether you're expanding your business or seeking a strategically located industrial investment, Unit 50 delivers outstanding usability, value, and convenience.
| 2 hours ago | Listing updated with changes from the MLS® | |
| 2 hours ago | Listing first seen on site |
The data relating to real estate for sale on this website appears in part through the SMARTMLS Internet Data Exchange program, a voluntary cooperative exchange of property listing data between licensed real estate brokerage firms, and is provided by SMARTMLS through a licensing agreement. Listing information is from various brokers who participate in the SMARTMLS IDX program and not all listings may be visible on the site. The property information being provided on or through the website is for the personal, non-commercial use of consumers and such information may not be used for any purpose other than to identify prospective properties consumers may be interested in purchasing. Some properties which appear for sale on the website may no longer be available because they are for instance, under contract, sold or are no longer being offered for sale. Property information displayed is deemed reliable but is not guaranteed. Copyright 2025 SmartMLS, Inc.
Last checked: 2025-11-19 11:37 PM UTC.
Did you know? You can invite friends and family to your search. They can join your search, rate and discuss listings with you.